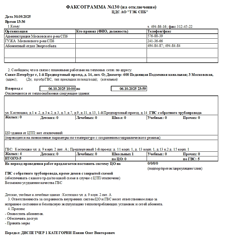
ЦДС АО "ТЭК СПБ" информирует о плановых работах на тепловых сетях по адресу: 1-й Предпортовый проезд, д. 14, лит. О
В период с 06.10.2025 10:00 по 06.10.2025 23:59 отключаются от теплоснабжения следующие здания:
ул. Костюшко, д.1 к .2, д.3 к.2, д.3, д.5, д.7, д.9, д.11, д.13, 1-й Предпортовый проезд, д.14
Костюшко ул: д. 9 корп. 2 лит. А ; Предпортовый 1-й проезд: д. 11 корп. 1, д. 13 корп. 1,, д.13 к.2, д. 15 корп. 1
